新築に伴う 和風鑑賞池新設工事
錦鯉の飼える池を造って欲しい

今回のお施主様からのご要望は家を新築する際に、
錦鯉の飼える鑑賞池を作って欲しいとのことです。
京阪錦鯉ろ過システムでの設計です。
|
錦鯉飼育池の新設工事のほか
ろ過循環システムの依頼を受けました。
|
| 工事前 |
 

工事前の環境
これから家を新築されるお客様よりご依頼がありました。
予定地に錦鯉の飼える和風鑑賞池(庭池)を造ってほしい。
長年の夢 錦鯉が優雅に泳ぐ庭池ををご自宅に造りたいとご希望です。
これから錦鯉飼育したいとのことで、 メンテが容易で水造りができる
機能的な錦鯉のための、池造りをご用命いただきました。
錦鯉を飼育するための水造りの必要性をご理解いただき、
底水配管や沈殿分離槽といった水造りに必要な設備が備わった飼育池にします。
なおかつ、より良い水質を目指すため、生物処理槽(カキガラ)を併設し、
浄化能力をアップさせました。
また、住宅メーカーさんともお互い効率よく業務が遂行できるように
綿密に打ち合わせを行い、施工範囲、下水配管、電気設置場所等の確認
を行いました。
|
新設池の予定
4×2×1(深)mひょうたん型 和風鑑賞池 総水量約7t
沈殿槽・生物処理槽・スーパーマリン併設の
京阪錦鯉濾過システムを導入 |
|
|
掘削 |
 

水深が1mになるようにどんどん掘り進みます。
|
底水配管 |
 

底水配管工事・池底集水ピットユニット据付
比重の重たいアンモニア・硝酸・亜硝酸を効率よく
浄化循環させる池造りに大切な工事です。
この配管があるのと無いのとでは
浄化効率(飼育水の出来)に格段の違いが見られます。
|
池水は集水ピットからサイフォン現象を利用して沈殿分離槽に集水し、
ポンプアップして強制濾過機に水を循環します。
このシステムはポンプアップを開始するだけで
池底面の不純物がどんどん沈殿分離槽に集水されますので
非常に効率の良い濾過循環が可能になります。
※サイホン現象とは、2つの水槽間を管でつないだときに、管の中が水で満たされると、
2つの水槽の水位が同じになろうとする現象です。
水の中にすむ魚のおしっこやエサの食べかすは比重が重たいので池の底に沈みます。
その悪い水を沈殿槽に集約し、効率よく濾過・浄化循環するために必要です。

その為に必要な池底集水ピットユニット
集水ピットユニットがあれば池底工事が楽に効率よく工事でき、作業日数の短縮にもつながります。
底水配管工は池の底下に埋設する配管ですので、池を造ってしまってからでは大がかりな工事を必要とします。
池造りは最初が肝心といわれる所以(ゆえん)です。
|
クラッシャー敷き |
 
均一にクラッシャーを敷いて転圧をかけます。
|
ステコン |
 
慎重にまんべんなく均してゆきます。
|
| ブロック積み |
 
 
形がひょうたん型ですので
ブロックを積みやすいようにスプレーで形を決めてゆきます。
 
だんだん形が見えてきました。
 
沈殿分離槽・生物処理槽も一緒にブロック積みします。
慎重にかつ、すばやく積んでゆきます。
CBブロック(オール充填用)

 
一般にはあまり流通しませんが、縦横共に穴の開いたオール充填用というブロックを使用します。
普通のブロックなどでは継ぎ手部分と鉄筋の所だけ充填しますが、
今回使用するオール充填用ブロックは空洞部分全てにモルタルを充填することで、
より強度を持たせることができるという特徴があります。

沈殿槽は池底より20㎝高く設定されております。
|
石組み |
 
慎重に石組みを行います。
 
和風池にマッチする滝・流れも一緒に造ります。
|
左官モルタルコテ仕上げ |
 
腕の良い左官職人によってしっかりと「おさえ」をしてもらいます。 防水塗料だけを塗ればいいという声も聞きますが、塗料によってはアクが生き物に害を及ぼすこともあります。
素人ではできないたくみの技でもあります、普通に壁を塗るのとはわけが違います。
 
「おさえ」がしっかりできてないと水漏れの原因のほかにあく抜きができない池の裏側から
アクが出て大切な錦鯉が死ぬ原因にもなり、せっかくの池作りは失敗に終わります。 ※最高に「おさえ」ができている壁面は自分の顔が鏡のように映ります。 「おさえ」をしっかりできることが水漏れをしない最大のポイントといっても過言ではありません。
「おさえ」ができてなければ防水モルタルを使っても意味がないので、使用してません。
 
 

|
池用塗料 |
 
錦鯉をより見栄え良く、健康に育成できるよう鑑賞池用塗料を塗ります。
黒色が錦鯉にとって一番落ち着く色で、綺麗に見え引き立ちます。
 
水を張ってない状態だと黒一色で、不気味だなぁと思うかもしれませんが、ご安心下さい。
逆に池に明るい色を塗ると錦鯉が落ち着かず、キワがぼけ綺麗に見えません。
また、池自体が強調されすぎて周りの景色とのバランスが崩れてしまいます。
 
水色とか塗る池があるそうですが、時間が経つとコケがつくのでむしろ意味が無くなります。
鑑賞池用塗料
 

|
ろ過設備 |
生物膜式循環濾過機スーパーマリンNEW-520設置 「魚を買う前にまず水を飼え」をいわれるようにまず池を作ったら、水を造ります。 水造りとは生き物が健康に住むための水を作ることです。 その結果、水が透明になり、錦鯉を鑑賞できる透明度を維持することができます。 水造りに手間をかけないと後々、アオコや水のにごりに苦労します。
そうしないためにも、水つくりをよく考えましょう。

手間要らずの水造りを実現します。
この濾過装置には物理濾過と生物濾過を一緒に行うシステムになっており、 レバーを操作するだけで簡単に逆洗・濾材洗浄が出来るようになっております。
非常にコストパフォーマンスに優れた装置です。
既設の池でも優れた効果を発揮します。 |
完成 |
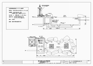
京阪錦鯉濾過システム概要

バイオリアクター(生物膜式循環濾過機)はスーパーマリンNEW-520 フル装備仕様
 
ブログでも製作工程公開中!!http://ameblo.jp/koibest/entry-11907706039.html
錦鯉飼育池
4×2×1.0(深)m 錦鯉の飼える和風鑑賞池 総水量約7t

~京阪錦鯉濾過システム概要~
循環濾過:スーパーマリンNEW-520
生物膜式循環濾過方式
循環ポンプ:400W/100V
濾過処理水経路:アクアジェット(ろ過処理水)
鑑賞池用池底集水ピットユニットPIT-580□*2基
底水配管・低水排水・沈殿分離槽(サイフォン方式)
生物処理槽(濾材カキガラ)
爆気装置:アクアジェット(濾過処理水)
新水:地下水
設計・施工:(株)京阪水処理開発 京阪錦鯉センター

| 参考施工価格帯 |
| ○ |
150~250万円 |
|
250~350万円 |
|
350~500万円 |
|
500万円以上 |
|
|
上質な飼育水を造り出すための、配管構造、循環濾過システム
飼育水量7tという限られた池のキャパシティーを最大限に発揮するため
過剰な過密飼育にも耐えうる、ハイスペックな濾過装置を搭載、
最高の飼育環境を造り出します・・・。
 
比重の重い悪水質 底水を効率よく導水させる集水ピットユニット PIT-580□*2基
https://www.koibest.com/shopping-pit.html
 
濾過処理水はアクアジェットにてリターンさせます。
https://www.koibest.com/shopping-aquajet.html#aquajet
 
より良い水質を目指すため、生物処理槽(接触濾材:カキガラ)を併設

沈殿分離槽
池水は集水ピットからサイフォン現象を利用して沈殿分離槽に集水します。
ポンプアップを開始すると池底面の不純物がどんどん沈殿分離槽に集水されます。
池の中は錦鯉の習性や水質のことを考慮し、錦鯉が怪我しないよう、障害物はなくしております。
池はキャンバス 錦鯉は絵の具 鑑賞池は素敵な動く絵画のようです。
お施主様にも大変喜んで頂きました。 |