夢の超ビッグタンク
アロワナ・ピラルク飼育水槽新設工事
大型熱帯魚の飼える大型水槽を造って欲しい


今回のお施主様からのご要望は大型の熱帯魚も飼育できる、
窓付コンクリート水槽を造って欲しいとのことです。
京阪錦鯉ろ過システムでの設計です。
|
飼育水槽の新設工事のほか
ろ過循環システムの依頼を受けました。
|
| 工事前 |
 
工事前の環境
レア熱帯魚コレクターのスーパーマニア様よりご依頼がありました。
ピラルクやアロワナの大型熱帯魚が悠々と遊泳することができる
窓付きのコンクリート水槽を造って欲しいとご希望です。建屋も立てます。
また、住宅メーカーさんともお互い効率よく業務が遂行できるように
綿密に打ち合わせを行い、施工範囲、下水配管、電気設置場所等の確認
を行いました。
|
新設水槽の予定
5×2×1.5(深)m プール型窓付 総水量約15t
沈殿槽・スーパーマリン併設の
京阪錦鯉濾過システムを導入 |
| 基礎工事 |
 
建築確認の審査が通りましたので、基礎工事を行います。
 
|
型枠組立(外側) |

外面を型枠で組んでゆきます。
 
型枠とは
鉄筋コンクリートの構造物は、まだ柔らかいコンクリートを建物の形の「枠」に流し込んで、
その形に固まらせて作ります。このコンクリートの形を決める枠がいわゆる『型枠』で、
その『型枠』を作り込む仕事が『型枠大工』と言う職人であります。
この工事は図面通り正確な形で組み立てる精度と
流し込まれるコンクリートの圧力に耐える強度を必要とされるので、
水平、垂直、レベルを常に確認します。
コンクリートは固まったら元に戻りません。
だから失敗すると、やり直しがききません。
建物全体の出来具合を決定する大変重要な仕事となります。
大型のコンクリート水槽に必要な強度を確保しつつ、工期を短縮できる利点があります。

|
底水配管 |
 
底水配管工事・池底集水ピットユニット据付
比重の重たいアンモニア・硝酸・亜硝酸を効率よく
浄化循環させる池造りに大切な工事です。
この配管があるのと無いのとでは
浄化効率(飼育水の出来)に格段の違いが見られます。
|
 
飼育水は集水ピットからサイフォン現象を利用して沈殿分離槽に集水し、
ポンプアップして強制濾過機に水を循環します。
このシステムはポンプアップを開始するだけで
池底面の不純物がどんどん沈殿分離槽に集水されますので
非常に効率の良い濾過循環が可能になります。
※サイホン現象とは、2つの水槽間を管でつないだときに、管の中が水で満たされると、
2つの水槽の水位が同じになろうとする現象です。
水の中にすむ魚のおしっこやエサの食べかすは比重が重たいので池の底に沈みます。
その悪い水を沈殿槽に集約し、効率よく濾過・浄化循環するために必要です。

その為に必要な池底集水ピットユニット
一昔前は、会所枡に孔加工し、左官ですり鉢状に形状を作っていましたが、
時間と手間を必要とし、加工不良による水漏れも多くございました。
当社の集水ピットユニットを使えば池底工事が簡単に出来、
施工期間も大幅に短縮することが出来ます。
FRP(強化プラスチック)製なので水漏れの心配はありません。
また、強靭で腐食が無く半永久的です。
底水配管工は池の底下に埋設する配管ですので、池を造ってしまってからでは大がかりな工事を必要とします。
池造りは最初が肝心といわれる所以(ゆえん)です。
|
基礎コンクリート打設 |
 
慎重にまんべんなく均してゆきます。

 
|
型枠組立(内側) |
 
内側の型枠も組み立ててゆきます。
 
 
|
| コンクリート打設 |
 
コンクリートを型枠に流し込む作業です。
コンクリートミキサー車から大型のポンプ車で、生コンクリートを圧送します。
慎重かつ素早く流し込みます。
 
流動性のあるコンクリートを流し込むため、
型枠にかなりの側圧がかかるので、打設中、型枠の点検はこまめに行います。
打設したコンクリートはしっかりバイブレータをかけ、
コンクリートが抱え込んでいる空気を出して入念に締め固めを行います。
これは、ジャンカやコールドジョイントなどが出来ないようにするために必要な作業です。
これにより、コンクリートが隅々に行き渡るようになり、且つ余計な空気や水分を出すこともできます。
ジャンカとは、コンクリートの打設不良の事例の一つ。
締め固め不足やセメントと砂利の分離、また型枠下端からのセメントペーストの漏れにより
空隙ができ強度が下がり、脆くなっている状態のことをいいます。
 
コンクリートの均し作業
その後は、打設したコンクリートの表面を平滑に仕上げる作業(均し作業)が入ります。
この作業には、コテなどを使います。
この工程を怠りますと表面にひび割れ(クラック)が生じる可能性が高くなります。
 
型枠の中へ流し込んだコンクリートが固まったら型枠を取り外します。
 
 
|
FRP防水 |
FRP防水(ガラスマット敷設)
FRPとは・・・
FRPとは繊維強化プラスチック(Fiberglass Reinforced Plastics)の略称で、
ガラス繊維などの強化材(補強材)で補強したプラスチック、という意味です。
 
FRPは強度・耐水性・成型性など数々の優れた特性を持っていることから、
例えば船舶、水槽、バスタブ、波板、自動車、屋根材等として広く使用されています。
FRP防水は、優れたFRPの特性を防水分野に応用したもので、
防水層は軽量かつ強靭、耐熱性・耐食性・耐候性などに優れているという特長があります。
FRP防水は、液状の不飽和ポリエステル樹脂に硬化剤を加えて混合し、
この混合物をガラス繊維などの補強材と組み合わせて一体にさせることで
積層強化された被覆防水層を形成します。
 
従って出来上がった防水層は、継ぎ目のないシームレスな層となり、
外観的にもきれいな仕上がりとなります。
先にポリエステル樹脂を下塗りしてからポリエステル樹脂を含浸させたハケやローラーで ガラス繊維のマットを全面に密着させて貼り付けます。
 
しばらくすると硬化が始まり、固くなってゆき、防水面が出来上がります。
この工程を2回行い、より強固に仕上げてゆきます。

 
 
|
強化ガラス据付 |
今回のミッションは錦鯉飼育の水槽ではなく、アロワナ・ピラルクといった大型の熱帯魚の飼育水槽作成です。
熱帯魚は横から見るのが基本ですので、窓(強化ガラス)を取り付けます。

一昔前までは、大型水槽といえばアクリルが主流でしたが、
年数が経過するとどうしても小さな傷や曇りができてしまい、
観賞の妨げになってきますので、強化ガラスを採用しました。
ガラスは傷が付き難く 透明感が損なわれないので、いつまでも
クリアに観賞することが可能です。
ガラスの据付は水族館のガラス取付などを主に行うスペシャリストの皆さんです。
ガラスの寸法は長さ5,000*高さ1,500*厚み38mmの強化ガラスとなっており、重量は約600kg 特注品です。
水圧に耐える強度を確保するために、19mm+19mmの合わせガラスになっております。
 
ガラスがトラックで運ばれてきました。
 
ガラスの吊り上げはバキュームリフター(真空リフト)という、アイテムを使用します。
板ガラスを傷つけることなく、吸着し、搬送、
ガラスを取り付けやすいよう、反転したり旋回したりできるスグレモノです。
 
 
クレーンオペレーターと無線でやりとりし、慎重に釣ってゆきます。
 
風が吹いてガラスが割れれば一大事です。ゆっくりと、、、
 
職人が屋根に登って安全・水平・レベルを確認します。
 
鉄骨に当たらないように、クレーンオペレーターと無線で連絡し合いながら降ろします。
 
ガラスの溝にはまるように誘導します。
 
無事据付完了です。
隙間はマリンシーラントでコーキングします。
|
ろ過設備 |
ろ過方法は忙しいお施主様のメンテナンスの負担を減らすため、
実績のある生物膜式循環濾過機を使用します。
生物膜式循環濾過機スーパーマリンNEW-650設置
「魚を買う前にまず水を飼え」をいわれるようにまず池を作ったら、水を造ります。
水造りとは生き物が健康に住むための水を作ることです。
その結果、水が透明になり、熱帯魚を鑑賞できる透明度を維持することができます。
水造りに手間をかけないと後々、アオコや水のにごりに苦労します。
そうしないためにも、水つくりをよく考えましょう。
手間要らずの水造りを実現します。
この濾過装置には物理濾過と生物濾過を一緒に行うシステムになっており、
レバーを操作するだけで簡単に逆洗・濾材洗浄が出来るようになっております。
非常にコンパクトに設計されており、省スペースで済みます。
圧力式ですので、水槽の近くに置く必要はなく、場所も選びません。
既設のアクリル水槽やFRP水槽でも設置可能で、優れた効果を発揮します。
非常にコストパフォーマンスに優れた装置です。
濾過槽掃除などのメンテナンスが大変ですと、
ついつい、掃除を先延ばしにしてしまい、魚にもよくありません。
どんなに忙しくても、メガタンクを維持するのが苦にならなりませんので、
観賞に集中することが可能になりました。
|
完成 |

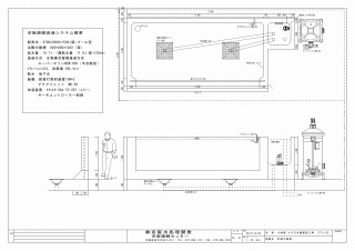
京阪錦鯉濾過システム概要
バイオリアクター(生物膜式循環濾過機)はスーパーマリンNEW-650 フル装備仕様

ブログでも製作工程公開中!!http://ameblo.jp/koibest/entry-11975826004.html

夢の超ビックタンク
5×2×1.5(深)m アロワナ・ピラルク飼育水槽 総水量約15t

~京阪錦鯉濾過システム概要~
循環濾過:スーパーマリンNEW-650
生物膜式循環濾過方式
循環ポンプ:750W/200V
濾過処理水経路:アクアジェット(ろ過処理水)
鑑賞池用池底集水ピットユニットPIT-580□*2基
底水配管・低水排水・沈殿分離槽(サイフォン方式)
爆気装置:アクアジェット(濾過処理水)
新水:水道水
加温装置:エアコン空調・チタンヒーター5KW(サーモコントロール制御)
設計・施工:(株)京阪水処理開発 京阪錦鯉センター

| 参考施工価格帯 |
|
150~250万円 |
|
250~350万円 |
|
350~500万円 |
| ○ |
500万円以上 |
|
|
上質な飼育水を造り出すための、配管構造、循環濾過システム
飼育水量15tという限られた池のキャパシティーを最大限に発揮するため
過剰な過密飼育にも耐えうる、ハイスペックな濾過装置を搭載、
最高の飼育環境を造り出します・・・。
 
比重の重い悪水質 底水を効率よく導水させる集水ピットユニット PIT-580□*2基
フタの孔サイズ:標準仕様30Φを 別注でスリット式(幅5mm)に変更
https://www.koibest.com/shopping-pit.html
 
濾過処理水はアクアジェットにてリターンさせます。
https://www.koibest.com/shopping-aquajet.html#aquajet

沈殿分離槽
池水は集水ピットからサイフォン現象を利用して沈殿分離槽に集水します。
ポンプアップを開始すると池底面の不純物がどんどん沈殿分離槽に集水されます。
お施主様にも大変喜んで頂きました。 |
完成から半年後、、、 |
飼育水の調子もよく、アロワナたちが元気に出迎えてくれました。
スーパーマリンも順調に稼働しております。






|